










DETAILS

Since 1961, Triumph Car Lift has provided high-quality vehicle lifting equipment for professional mechanics and enthusiasts. Their mission is simple: to deliver reliable, safe, and efficient lifting solutions that help customers work smarter.
A Triumph car lift is more than a tool—it’s an investment. That’s why every lift is crafted with expertise to meet rigorous standards for quality, performance, and durability. From precision-engineered two-post lifts to heavy-duty four-post models, Triumph lifts are built to handle the toughest garage demands.
Triumph 8,000 lb Four Post Auto Lift for Storage & Service
The Triumph 8,000 lb Four Post Auto Lift is designed for both car storage and service, making it a versatile addition to any garage or workshop. Whether you're looking for an efficient way to store your vehicle or need a reliable lift for maintenance, this lift can handle up to 8,000 lbs with ease.
This auto lift comes equipped with a caster kit, jack tray, and three drip trays. The caster kit allows for easy movement of the lift around your garage, making it fully portable. The jack tray provides the convenience of using a bottle jack or floor jack to lift one end of the vehicle, while the three drip trays prevent any fluids from the top vehicle from leaking onto the one below, ensuring a clean workspace.
Thanks to its time-tested design, this lift has been trusted for over 20 years and features automatic locking that engages at 10 different positions as the vehicle is raised. This ensures a secure and stable lifting experience every time. Additionally, the lift is easy to set up and is ideal for both storage and service needs, with a standard grey finish that blends seamlessly into any garage setting.
Important Shipping and Delivery Information:
- Your auto lift will ship via LTL (Less Than Truckload) common carrier freight. It will be transported on a 48-foot semi truck to your location.
- You are responsible for unloading the lift from the truck. The truck driver will not assist in unloading the lift.
- Lift Gate delivery service is not available for this product.
- You must have machinery capable of unloading the lift, such as a forklift, bobcat, tractor, tow truck, or backhoe.
- If you are unable to unload the lift, we can ship it to the nearest freight terminal for you to pick up with a trailer or moving van.
- You will need to schedule a delivery appointment with the freight carrier. We cannot schedule this for you.
- Free shipping does not include delivery to Government Secure Locations, State and National Parks, Construction Sites, Islands, Alaska, or Hawaii.
- Delivery can take between 3-14 days depending on your location, so please be patient.
Lift Warranty:
The Triumph Lifts come with a 1-year parts warranty (labor not included). In the unlikely event of a part failure, you can contact us, and we will troubleshoot the issue over the phone. We will then ship the necessary replacement part to you free of charge, and shipping will be via ground service. Please note that we do not cover labor costs for installing the replacement part; however, most car mechanics will be able to handle the installation. The warranty excludes rubber lifting pads, and the cylinders come with a 30-day full warranty, after which we provide a seal kit.
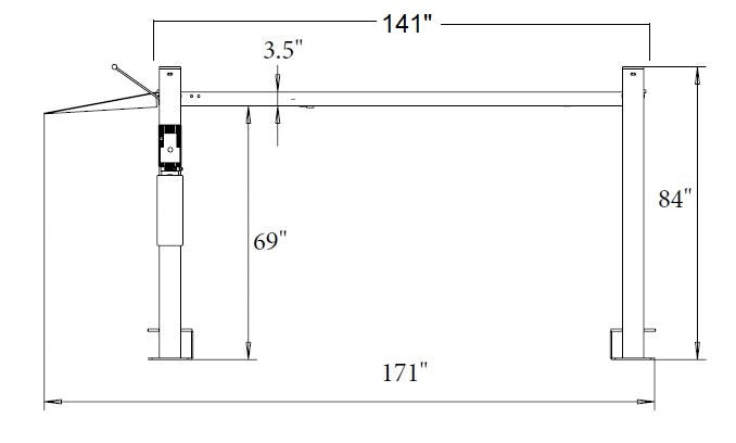
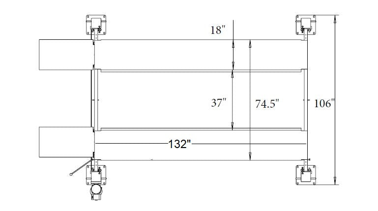
Specifications
Feature | Details | Feature | Details |
---|---|---|---|
Capacity | 8,000 lbs | Locking Positions | 10 |
Overall Height | 84" | Base Plate Size | 12" x 12" |
Overall Length with Approach Ramps | 175" | Lock Release | Single Point |
Overall Length without Approach Ramps | 141" | Lift Time | 40 Seconds |
Overall Width | 106" | Voltage | 110 Volts |
Lift Height | 72" | Shipping Weight | 1,600 lbs |
Height Under Runway | 69" | Shipping Dimensions | 175" x 106" x 84" |
Runway Length | 132" | Lowered Height | 5" |
Drive Thru Width | 93" | Runway Width | 18" |
Between Runway | 37" | Runway Width | 18" |
Order now to enjoy free shipping and transform your garage with this reliable, time-tested auto lift!