









DETAILS

Since 1961, Triumph Car Lift has provided high-quality vehicle lifting equipment for professional mechanics and enthusiasts. Their mission is simple: to deliver reliable, safe, and efficient lifting solutions that help customers work smarter.
A Triumph car lift is more than a tool—it’s an investment. That’s why every lift is crafted with expertise to meet rigorous standards for quality, performance, and durability. From precision-engineered two-post lifts to heavy-duty four-post models, Triumph lifts are built to handle the toughest garage demands.
Introducing The Classic Lift 8,000 Shorter Length, a reliable and efficient lifting solution designed for automotive professionals and enthusiasts who require a compact yet powerful lift for their workshop. This two-post lift is engineered to provide exceptional performance while accommodating a variety of vehicles, making it an essential addition to any garage with limited space.
Key Features:
-
Robust Lifting Capacity: With a lifting capacity of 8,000 lbs, The Classic Lift is capable of handling a wide range of vehicles, including compact cars and light trucks, ensuring versatility for various automotive tasks.
-
Shorter Length Design: The shorter length of this lift makes it ideal for garages with limited space, allowing for easy installation and maximizing the usable area in your workshop without compromising on performance.
-
Durable Construction: Built with high-quality materials, The Classic Lift features a sturdy steel frame designed to withstand the rigors of daily use, ensuring long-lasting reliability and performance.
-
User -Friendly Operation: The lift is equipped with a hydraulic lifting system that allows for smooth and precise lifting and lowering of vehicles. Its intuitive controls make it easy to operate, even for those new to using auto lifts.
-
Enhanced Safety Features: Safety is a top priority with The Classic Lift. It includes automatic safety locks, a wide base for stability, and rubber pads to protect vehicle surfaces, ensuring safe operation during maintenance and repairs.
-
Versatile Applications: Perfect for a variety of automotive tasks, including oil changes, brake repairs, tire rotations, and more, The Classic Lift is a versatile tool that meets the needs of both professional mechanics and DIY enthusiasts.
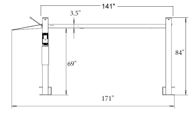
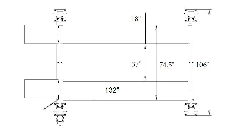
Specifications:
- Lifting Capacity: 8,000 lbs
- Lifting Height: Up to 72 inches
- Overall Height: 110 inches
- Width Between Posts: 100 inches
- Power Supply: 220V / 1PH
- Weight: Approximately 1,500 lbs
Conclusion:
The Classic Lift 8,000 Shorter Length is the perfect solution for automotive professionals seeking a compact, powerful, and safe lifting system. Whether you’re performing routine maintenance or extensive repairs, this lift will enhance your workshop capabilities, allowing you to work on vehicles with confidence and ease. Upgrade your garage today with The Classic Lift and experience the difference in quality and performance!